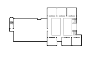
General View
The Main hall
New Building is a building located in Yeondu High School and the main building of the school.
The New Building have a new facility, unlike the Main Building.
The New buildings can be divided into two part
( The Main Hall / Corridor part ).
The New Building has the 3rd grade classrooms and special classrooms.
The Main Building's ambience is narrow, old and dark but the New Building's ambience is spacious and bright than the main building.
The developer says, The New Building show the different fear ( like agoraphobia ) from the Main Building.
Floors[]
1st Floor[]
Corridor part
- History Room [ 역사관 ]
- Chairman's Office [ 이사장실 ]
The Main Hall
- Dance Studio [ 무용실 ]
- Music Appreciation Room [ 음악 감상실 ]
- Occult Club [ 오컬트 동호회 ]
- School Store / Cafeteria ( Original ) [ 매점 / 식당 ( Original ) ]
- Electrical Room [ 전기 제어실 ]
2nd Floor[]
Corridor part
- Art Studio [ 화실 ]
- Earth Science Lab [ 지구과학실 ]
- Language Lab [ 어학실 ]
- Computer Lab [ 컴퓨터실 ]
- Faculty Lounge [ 교직원 휴게실 ]
- Boy's/Girl's Bathroom [ 남자/여자 화장실 ]
The Main Hall
- The 3rd Grade Classrooms [ 3학년 교실 ] ( 3-1, 3-2, 3-3, 3-4, 3-5, 3-6 )
3rd Floor[]
Corridor part
- Rooftop [ 옥상 ] ( Original.ver )
The Main Hall
- The 3rd Grade Classrooms [ 3학년 교실 ] ( 3-7, 3-8, 3-9, 3-10, 3-11, 3-12 )
- Indoor bridge [실내 연결다리]
4th Floor[]
Corridor part
- Rooftop ( Swimming Pool ) [ 옥상 ( 수영장 ) ] ( Remake.ver )
The Main Hall
- Reading Room [ 열람실 ]
- Resource Center [ 자료 검색실 ]
- Library 1 ( Library A in the Original ver ) [ 제1 서고 ( 서고 A - the Original ver ) ]
- Library 2 ( Library B in the Original ver ) [ 제2 서고 ( 서고 B - the Original ver ) ]
- The Passageway going to the Main Hall Rooftop( a.k.a 5th floor )












